Coastal Living in a Historic Location 023 9200 2087
Menu
Royal Haslar

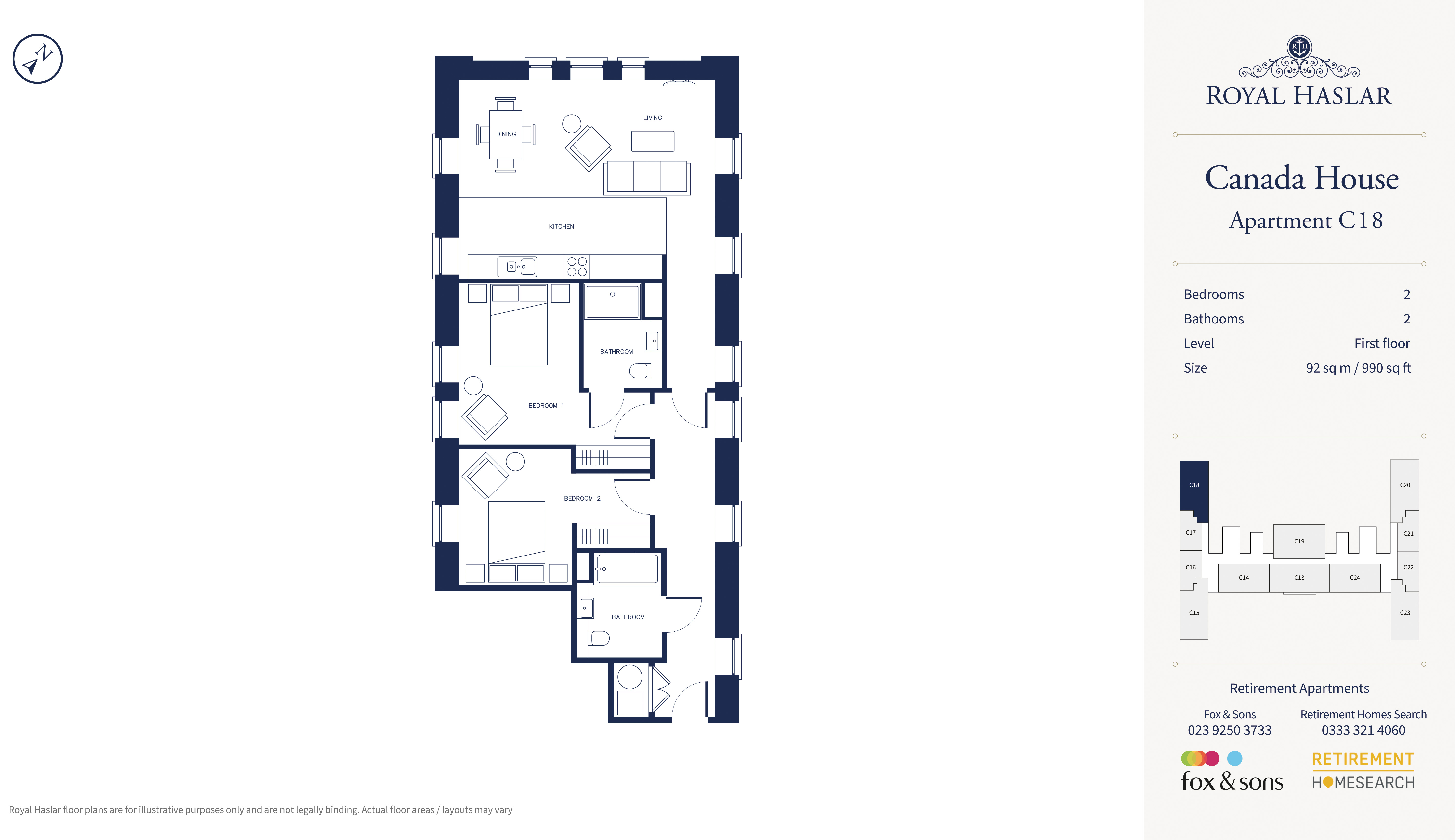
Apartment C18

Canada House - Apartment C18 Price: POA

Bed Icon
2 Bedrooms
Bath Icon
2 Bathrooms
Sofa Icon
1 Reception
Car Icon
Allocated Car Parking
Level Icon
First Floor
Availability Icon
Sold
Make an Enquiry >