Coastal Living in a Historic Location 023 9200 2087
Menu
Royal Haslar

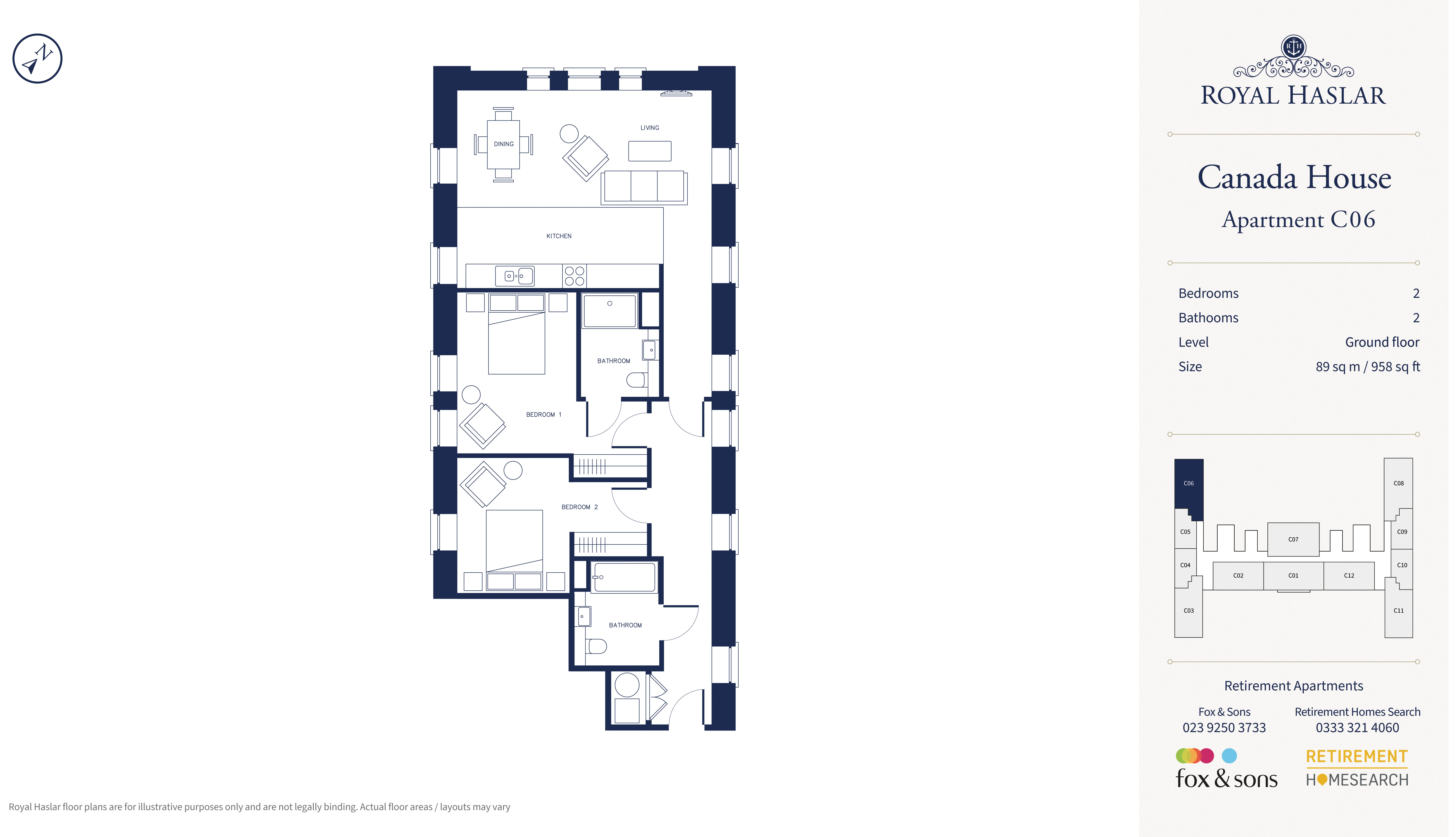
Apartment C06

Canada House - Apartment C06 Price: £385,000

Bed Icon
2 Bedrooms
Bath Icon
2 Bathrooms
Sofa Icon
1 Reception
Car Icon
Allocated Car Parking
Level Icon
Ground Floor
Availability Icon
Available
Make an Enquiry >