Coastal Living in a Historic Location 023 9200 2087
Menu
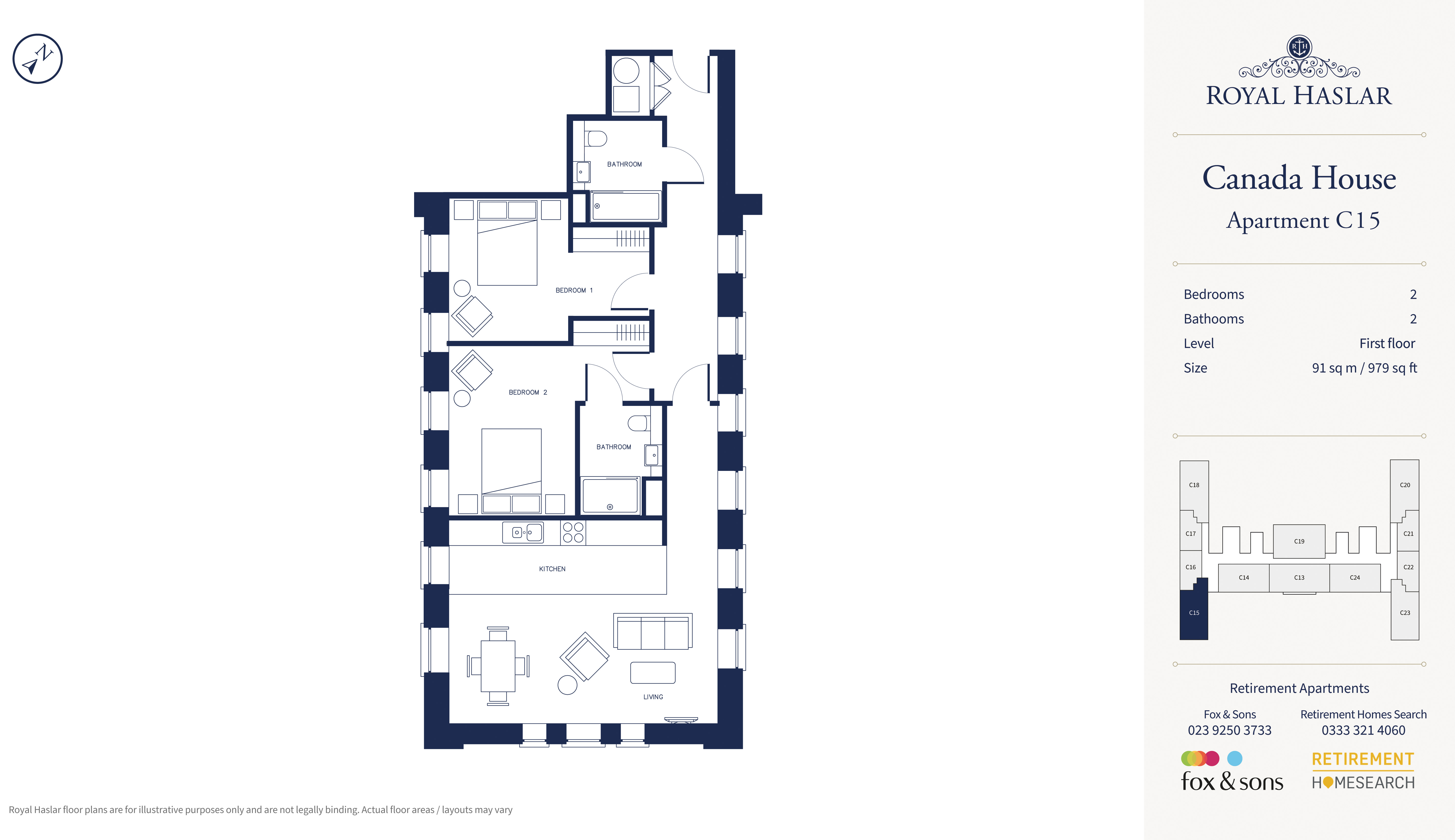
Royal Haslar

Apartment C15

Canada House - Apartment C15 Price: POA

Bed Icon
2 Bedrooms
Bath Icon
2 Bathrooms
Sofa Icon
1 Reception
Car Icon
Allocated Car Parking
Level Icon
First Floor
Availability Icon
Sold
Make an Enquiry >