Coastal Living in a Historic Location 023 9200 2087
Menu
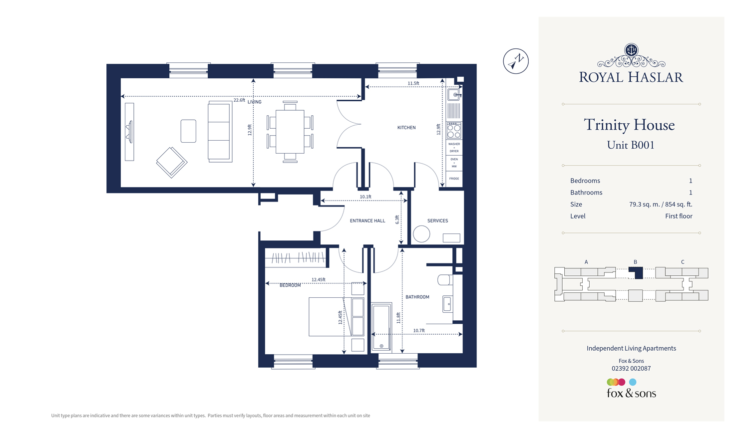
Royal Haslar

Apartment B001

Trinity House - Apartment B001 Price: £325,000

Bed Icon
1 Bedroom
Bath Icon
1 Bathroom
Sofa Icon
1 Reception
Car Icon
Allocated Car Parking
Level Icon
First Floor
Availability Icon
Available
Make an Enquiry >