Coastal Living in a Historic Location 023 9200 2087
Menu
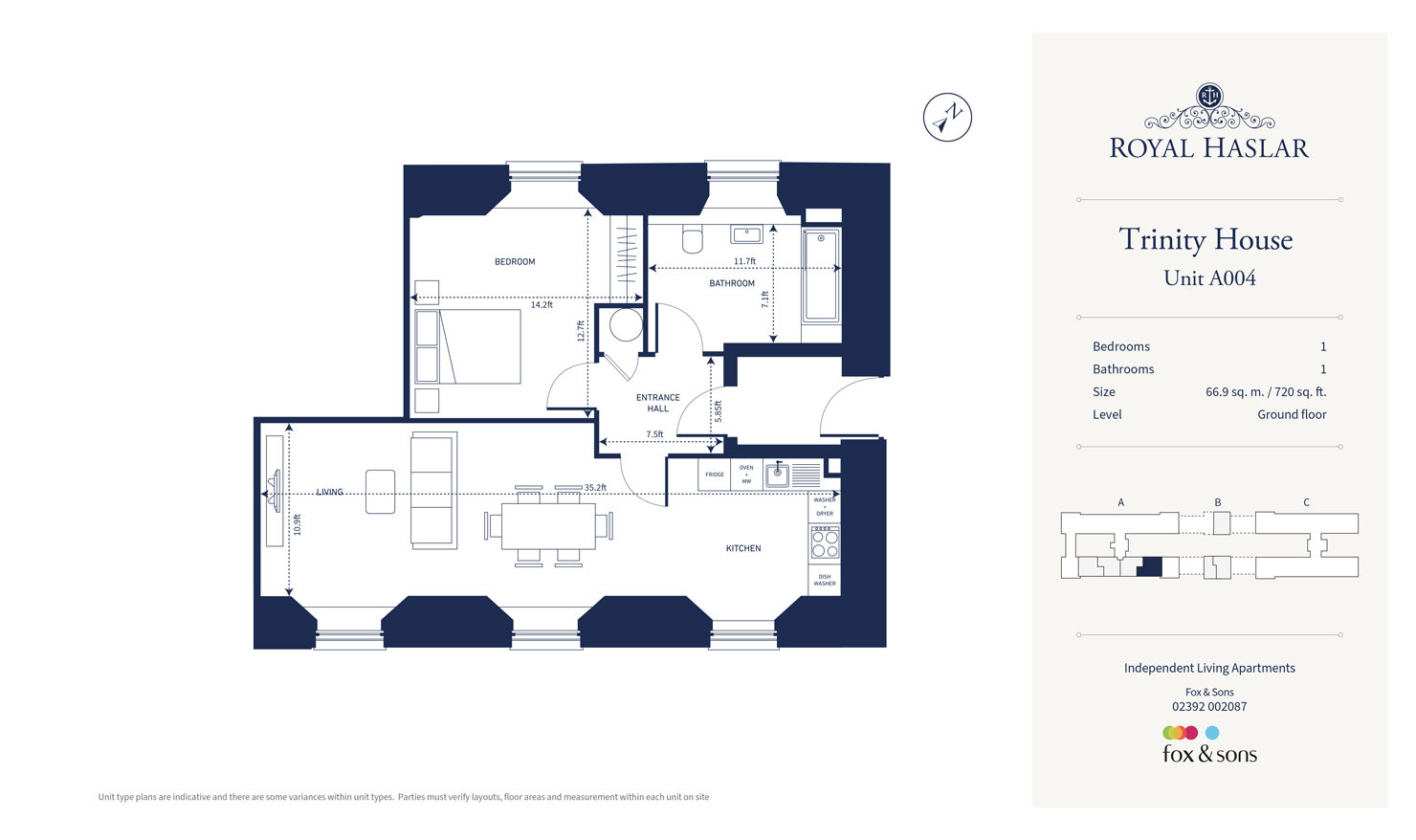
Royal Haslar

Apartment A004

Trinity House - Apartment A004 Price: £260,000

Bed Icon
1 Bedroom
Bath Icon
1 Bathroom
Sofa Icon
1 Reception
Car Icon
Allocated Car Parking
Level Icon
Ground Floor
Availability Icon
Available
Make an Enquiry >